· SketchUp

From 2D to 3D: How to Save Time with Canvas PLAN TO CAD

2D to 3D Made Easy with Canvas.io PLAN to CAD

You are sitting at your desk, about to work on modeling a space with SketchUp.  You have a PDF of the area, and you think to yourself…I wish there was a way to build this space in 3D without all the manual work.

Key Takeaways:

  • Canvas PLAN TO CAD turns floor-plan PDFs into accurate SketchUp-ready 3D geometry, eliminating manual tracing.
  • Saves hours of as-built work and removes the measurement errors that creep in when you trace by hand.
  • Use it for projects of any size — single rooms or full residential floor plans.
  • Pairs well with my SketchUp courses for designers who want a faster start to every project.

Many people think AI can do this. It can’t.  At least not yet. But the good news is there is a new service that does just this. And it’s not some unknown offshore startup.  It’s the good folks at Canvas.io.  You may have heard (or used) their scanning app, which uses your LiDAR enabled iPhone or iPad to scan a room into a 3D model.  But if you have a PDF of the space, you can’t use their scanning service…you had to manually model it.  Until now…

*Affiliate links may be used throughout this article. Read our Privacy Policy for more information. 

Table of Contents

Enter Canvas PLAN TO CAD, a cutting-edge solution designed to streamline the way interior designers work. You can now simply upload your PDF to their platform, and their service transforms real-world spaces into ready-to-edit SketchUp files with remarkable accuracy and speed. Whether you’re redesigning a cozy living room or planning a large-scale commercial project, Canvas PLAN TO CAD empowers you to focus on what you do best: designing extraordinary spaces.

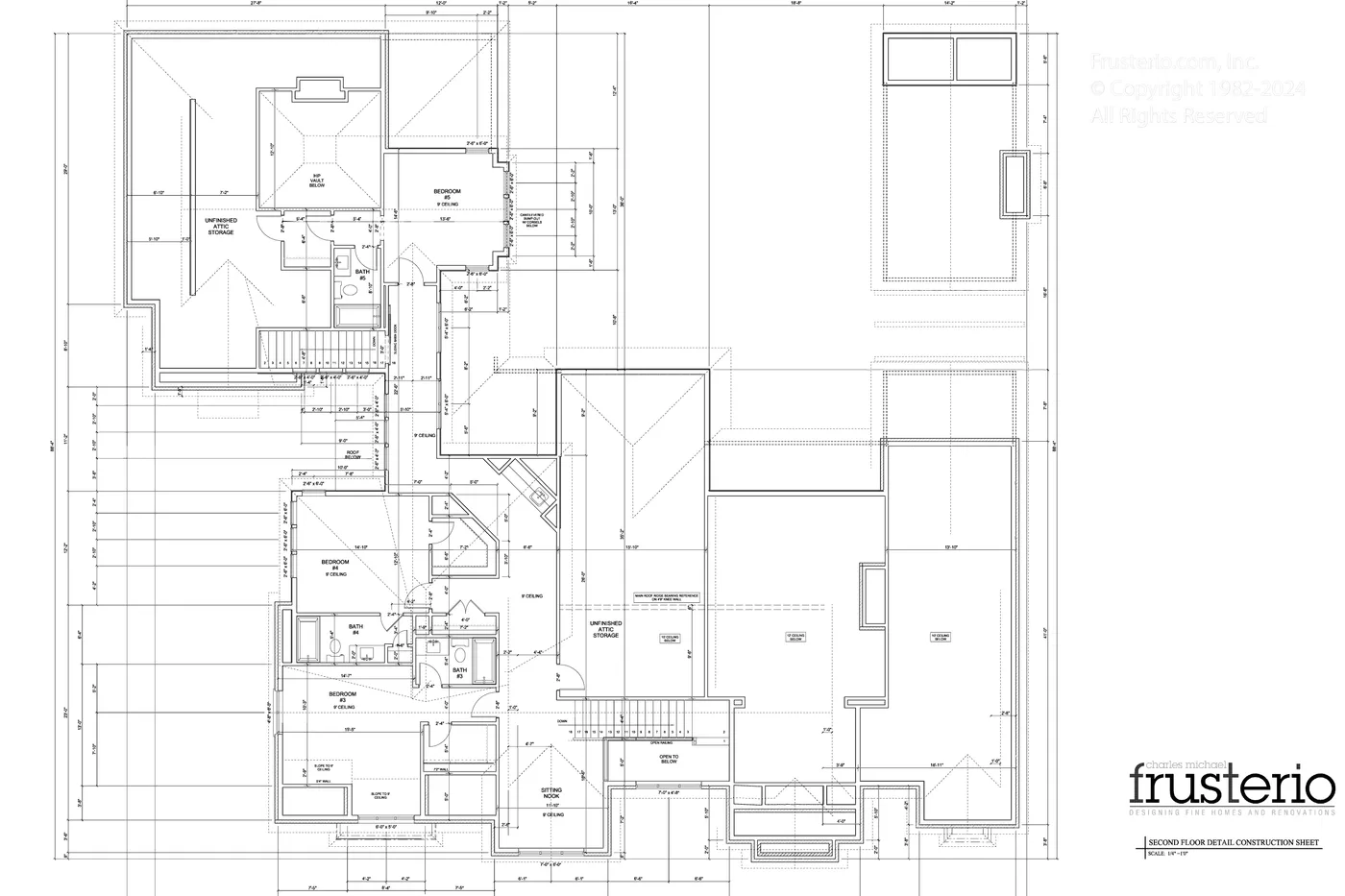
Canvas's PLAN TO CAD service saved me so much time modeling this house plan from Frusterio!
Canvas's PLAN TO CAD service saved me so much time modeling this house plan from Frusterio!

In this blog, we’ll explore how Canvas PLAN TO CAD works, its game-changing benefits for interior designers, and why it’s the ultimate tool for saving time, enhancing accuracy, and elevating your professional workflow.

The Need for Efficient As-Built Solutions in Interior Design

Every interior design project begins with a crucial step: understanding the existing space. Whether you’re remodeling a home, redesigning an office, or transforming a retail environment, or maybe designing a new home to be built, accurate drawings are essential for creating a functional and stunning design. However, generating these drawings can be a significant hurdle for designers.

Traditionally, capturing as-built data requires meticulous on-site measurements, hand sketches, and countless hours translating those measurements into digital plans. This process is not only labor-intensive but also leaves room for human error. Inaccurate measurements or overlooked details can lead to costly revisions, delays, and even dissatisfied clients.

For new construction projects, creating SketchUp models from PDFs or DWG files can be very time consuming, which means you spend time doing the “grunt work” of building the base SketchUp model instead of designing within it.

For interior designers and kitchen designers, time is a precious resource. Balancing the demands of multiple projects while trying to perfect every detail can feel overwhelming. This is why an efficient, accurate solution for creating as-built drawings is no longer just a luxury—it’s becoming a necessity.

An example CAD plan showing the Shannon House Plan from Frusterio.
An example CAD plan showing the Shannon House Plan from Frusterio.

Canvas PLAN TO CAD addresses these challenges head-on. Like Scan To CAD, the Canvas PLAN TO CAD product is powered by a mix of AI, custom tooling, and trained quality assurance personnel.  The result? A faster, more reliable way to kick off your projects with confidence and precision, allowing you to focus on your creative vision.

What is Canvas PLAN TO CAD?

Canvas PLAN TO CAD is a revolutionary tool that transforms how interior designers create their SketchUp models from 2D sources like PDFs and DWG files. Designed to streamline the transition from flat formats to editable, digital 3D models, this service bridges the gap and saves countless hours of modeling time.

Canvas PLAN TO CAD website
Canvas PLAN TO CAD website

Here’s how it works:

  1. Submit Your Documentation: Upload your DWG, DXF, or PDF files and their design team will give you an estimate. 
  2. Approve the Estimate: Once you approve the estimate, Canvas will model your space.
  3. Receive Your SketchUp File: Within days, you’ll receive editable CAD files in formats like AutoCAD, Revit, SketchUp, and more. These files include all critical details, from walls and doors to windows and fixtures.

Canvas PLAN TO CAD is designed to integrate seamlessly into your existing workflow. Whether you specialize in residential design, commercial interiors, or retail spaces, this tool provides the flexibility and accuracy you need to start every project on the right foot.

With Canvas PLAN TO CAD, what used to take hours or even days can now be accomplished in a fraction of the time. By leveraging the power of this service, you can eliminate tedious manual tasks, minimize errors, and focus on bringing your creative vision to life.

How Interior Designers Can Benefit

Interior designers know that efficiency and precision are the cornerstones of a successful project. Canvas PLAN TO CAD offers a range of transformative benefits that can elevate your workflow and help you deliver outstanding results to clients. Here’s how:

1. Save Time and Eliminate Manual Work

Manually modeling a space in SketchUp from PDFs or DWGs can eat up valuable hours—time that could be better spent on conceptualizing and refining your design. Canvas PLAN TO CAD automates the process by doing the grunt work for you, delivering ready-to-use CAD files, freeing up your schedule to focus on creative work.

2. Ensure Accuracy from the Start

A solid design starts with precise data. With Canvas PLAN TO CAD, your drawings reflect real-world dimensions down to the smallest detail. This accuracy reduces the risk of costly mistakes, ensuring your design aligns seamlessly with the physical structure.

3. Streamline Your Workflow

Canvas PLAN TO CAD integrates directly with industry-standard software like AutoCAD, SketchUp, and Revit, allowing you to hit the ground running as soon as your files are delivered. No more spending hours digitizing hand-drawn plans or adjusting inconsistent measurements.

4. Improve Client Communication

Clients expect professional, polished deliverables that showcase your expertise. With accurate and detailed CAD files, you have a solid base that you can then polish with rendering extensions like V-Ray and documentation interfaces like LayOut.  You can create stunning presentations, walkthroughs, and proposals that help clients visualize the potential of their spaces—and trust your vision.

5. Scale for Projects of Any Size

Whether you’re working on a single-room renovation or a multi-story commercial space, Canvas PLAN TO CAD is built to handle projects of any scale. Its flexibility ensures that you can adapt the tool to meet the demands of your portfolio, no matter how diverse.

With Canvas PLAN TO CAD, interior designers can finally reclaim their time, enhance the quality of their work, and deliver exceptional experiences for their clients. It’s more than just a tool—it’s a smarter way to design.

Key Features That Make Canvas PLAN TO CAD Useful for Designers

Canvas PLAD TO CAD isn’t just another design tool—it’s a robust solution tailored to meet the unique needs of interior designers, kitchen designers, and architects. Here are the standout features that make it a must-have for your workflow:

Canvas PLAN TO CAD delivers files in formats compatible with industry standards like SketchUp, AutoCAD, Revit, and Chief Architect. No matter which platform you use, you can easily import the files and start designing immediately.

Accurate and Detailed Drawings

The CAD files generated include precise measurements and comprehensive details of the space, such as walls, windows, doors, fixtures, and even architectural features. This accuracy helps you avoid costly errors and ensures your designs are grounded in real-world dimensions.

3D Models for Enhanced Visualizations

Canvas PLAN TO CAD can deliver fully editable 3D models. These models are perfect for creating walkthroughs, testing layouts, and presenting a lifelike vision of your design to clients.

A section cut view of the Shannon house plan by Frusterio
A section cut view of the Shannon house plan by Frusterio

Lightning-Fast Turnaround

Time is of the essence in the design world, and Canvas PLAN TO CAD delivers. Once you’ve uploaded your files and approved the quote, your files are ready in a matter of days. This speed lets you move from concept to execution without unnecessary delays.

Scalable for Any Project Size

Whether it’s a single room or a sprawling estate, Canvas PLAN TO CAD can handle it. The service is flexible and scalable, making it the perfect solution for both small-scale and large-scale interior design projects. Its pricing is based on the type of space (interior vs. exterior) and calculated using square footage.

Reliable Support

If you need assistance, Canvas offers dedicated support to help you get the most out of the service, whether it’s learning how to scan effectively or integrating the CAD files into your workflow.

By combining these features, Canvas PLAN TO CAD gives interior designers an edge in creating high-quality, professional designs faster and more efficiently than ever before. It’s not just about saving time—it’s about redefining what’s possible in your creative process.

Real-World Applications for Interior Designers

Canvas PLAN TO CAD is more than a tool; it’s a comprehensive solution that adapts seamlessly to a wide variety of design projects. For residential remodels and additions, it provides the as-built accuracy needed to design with confidence, eliminating guesswork and allowing designers to focus on creating layouts, selecting materials, and delivering transformative living spaces. In office redesigns, where businesses are rethinking layouts to accommodate hybrid work environments, Canvas PLAN TO CAD makes it easy to capture existing (or new) spaces and adapt them to modern needs, such as collaborative zones or private workspaces, ensuring every detail is accounted for.

Client presentations are elevated with Canvas PLAN TO CAD as well. Designers can open the delivered SketchUp file and use rendering extensions (such as V-Ray for SketchUp)  to create polished renderings, walkthroughs, and visuals that bring their vision to life, impressing clients with the level of detail and professionalism. When it comes to permitting, the service’s precise documentation reduces the likelihood of revisions or rejections, streamlining the approval process and keeping projects on track.

FOCUSED SketchUp + AI for Kitchens & Baths Image 2
Using Canvas PLAN TO CAD frees up your time to focus on rendering and client visualizations

Lastly, Canvas PLAN TO CAD is an invaluable resource for creating comprehensive as-built archives, offering a reliable reference for ongoing projects or future renovations. These archives serve as a critical asset for both designers and clients, ensuring that every detail is preserved for years to come. Whether you’re working on a single-room remodel, a complex commercial venture, or anything in between, Canvas PLAN TO CAD enables designers to save time, minimize errors, and consistently deliver outstanding results.

Real-World Applications for Interior and Kitchen Designers

Canvas PLAN TO CAD is a game-changer for both interior and kitchen designers, offering unparalleled flexibility and precision for a variety of projects. For kitchen projects, this service save an enormous amount of base modeling time and ensures accurate dimensions for cabinetry, appliances, islands, and other critical elements. Designers can focus on creating kitchens that are not only functional but also beautiful, confident that every detail of the space has been accounted for.

When it comes to whole-house remodels and additions, the benefits of Canvas PLAN TO CAD become even more pronounced. Modeling an entire home is a daunting task no matter what modeling software you use. Canvas PLAN TO CAD simplifies this process by taking care of the grunt work for you, transforming plans and schematics into comprehensive CAD files that include all essential details, from walls and windows to doors and built-ins. This accuracy allows interior designers to craft cohesive designs that flow seamlessly throughout the home, whether they’re reimagining multiple rooms or creating an entirely new addition.

Modeling an entire home is a daunting task no matter what modeling software you use. Canvas PLAN TO CAD simplifies this process by taking care of the grunt work for you

For commercial projects, such as restaurant kitchens or office spaces with integrated breakrooms and kitchenette areas, Canvas PLAN TO CAD ensures that designers can work with pinpoint accuracy. This is essential for meeting both functional requirements and compliance with safety standards. 

Canvas PLAN TO CAD is invaluable for creating detailed as-built archives, which can serve as a resource for future updates or maintenance. Whether you’re designing a dream kitchen, tackling a whole-house remodel, or transforming a commercial interior, Canvas PLAN TO CAD provides the accuracy and efficiency designers need to elevate their work and deliver exceptional results on every project.

Getting Started with Canvas PLAN TO CAD

Getting started with Canvas PLAN TO CAD is simple, and the process is designed to be user-friendly for both interior and kitchen designers. All you need is to create an account, upload your documents, and you will receive an email with an estimated cost to convert that into a 3D model.  Once you accept, the project kicks off!

Within a few days, you’ll receive your files in the format of your choice, compatible with industry-standard software like AutoCAD, SketchUp, Revit, and Chief Architect. These ready-to-use files save you the time and effort of manual drafting, allowing you to dive straight into the creative aspects of your project, with a few exceptions that I cover in the next section.

Things to Be Aware Of

When you receive your SketchUp file back, you will notice that it does contain many groups, which is helpful to avoid sticky geometry.  However, the groups are all named with the default name of “Group”, so if you use the Outliner in SketchUp to organize your model, it is hard to know what group does what.  They do provide many Tags (layers) though to toggle on/off the elements of the structure.  Canvas PLAN TO CAD files meet the LOD 200 standard (Generalized Representation/Schematic Design).

Also, when you get your file back, you will notice there are no scenes added, which means you will need to budget in some time to add scenes for all the views you need.  Not a big deal, but something to be aware of. 

The model you receive will have many Tags that you can toggle on/off
The model you receive will have many Tags that you can toggle on/off

Pricing - How Much Does it Cost?

One of the things I appreciate most about Canvas PLAN TO CAD is its flexible and transparent pricing structure, which makes it accessible for designers tackling projects of any size. The cost is determined per square foot, and is $0.20 per square foot.  To put that into perspective, if you had a 20’x15′ room, it would cost you around $60 to have it modeled using Canvas PLAN TO CAD.  A 1500 square foot house would cost you $300, and a 4500 square foot house would cost you around $900. 

This pricing structure has been a perfect fit for both my personal design projects and the curriculum I teach in my programs. It’s affordable enough for small-scale remodels yet scalable for more extensive undertakings like whole-house renovations. Whether you’re a professional designer or a student learning the ropes, Canvas PLAN TO CAD offers a cost-effective solution for creating precise models without compromising quality.

Conclusion: Save Time with Canvas PLAN TO CAD

As an interior or kitchen designer, your time and creative energy are valuable. Canvas PLAN TO CAD transforms the way you approach projects by eliminating the tedious, error-prone process of modeling a space in 3D from 2D sources like PDFs and DWG files. With precise, ready-to-edit CAD files delivered in as little as 48 hours, you can focus on what matters most: designing extraordinary spaces that exceed your clients’ expectations.

Whether you’re tackling a kitchen remodel, a whole-house renovation, or a commercial project, Canvas PLAN TO CAD equips you with the tools to start each project with confidence and save time along the way. Its seamless integration with industry-standard software, exceptional accuracy, and user-friendly process make it an essential asset for modern design professionals.

Don’t let the burden of creating a base model of your space slow you down. With Canvas PLAN TO CAD, you’ll save time, enhance your workflow, and elevate the quality of your designs.

Frequently Asked Questions

What is Canvas PLAN TO CAD, and how does it work?

Canvas PLAN TO CAD is a service that transforms 2D design files like PDFs and DWG plans into accurate, editable 3D models. You simply upload your files to the Canvas platform, approve a cost estimate, and receive a SketchUp or CAD file within days. This file includes all key details, such as walls, doors, windows, and fixtures, allowing you to start your design work immediately.

How accurate are the 3D models created with PLAN TO CAD?

The models are highly accurate, with precision based on the dimensions provided in your 2D files. This ensures your designs align perfectly with the original plans, reducing the risk of errors and costly revisions during the design or construction phases.

What types of projects are best suited for PLAN TO CAD?

Plan to CAD is ideal for a wide range of interior design projects, including kitchen remodels, whole-house renovations, and commercial interiors. It’s particularly beneficial for time-intensive tasks like creating base models from 2D plans, allowing designers to focus on creative work instead of manual modeling.

Are there any limitations or things to keep in mind when using PLAN TO CAD?

While the service saves time and effort, the returned SketchUp files often include generic group names, such as “Group,” which can make model organization more challenging if you rely on SketchUp’s Outliner tool. Additionally, the files do not include preset scenes, so you’ll need to allocate time to set up views for your project. These minor considerations are outweighed by the significant time savings and accuracy the service provides.

Tags

SketchUp SketchUp for Interior Design SketchUp for Kitchen Design